【保存版】岩国・益田・柳井・浜田。4展示場の見どころを間取り図で解説!

「住宅展示場に行きたいけれど、まずは家でじっくり間取りを比較したい」
そんな皆様の声にお応えして、イワナミが運営する4つの展示場(岩国・益田・柳井・浜田)の間取りを一挙公開します!
ライフスタイルに合わせて進化し続ける、イワナミ自慢のモデルハウスを「間取り図」とともに徹底解説。
あなたの理想に近いのはどのお家でしょうか?
| 目次
1. 【岩国展示場】遊び心あふれる「スキップフロア」の家 |
1. 【岩国展示場】遊び心あふれる「スキップフロア」の家 ~家族の気配を感じる、縦の空間活用~

間取り図
■1F
■2F
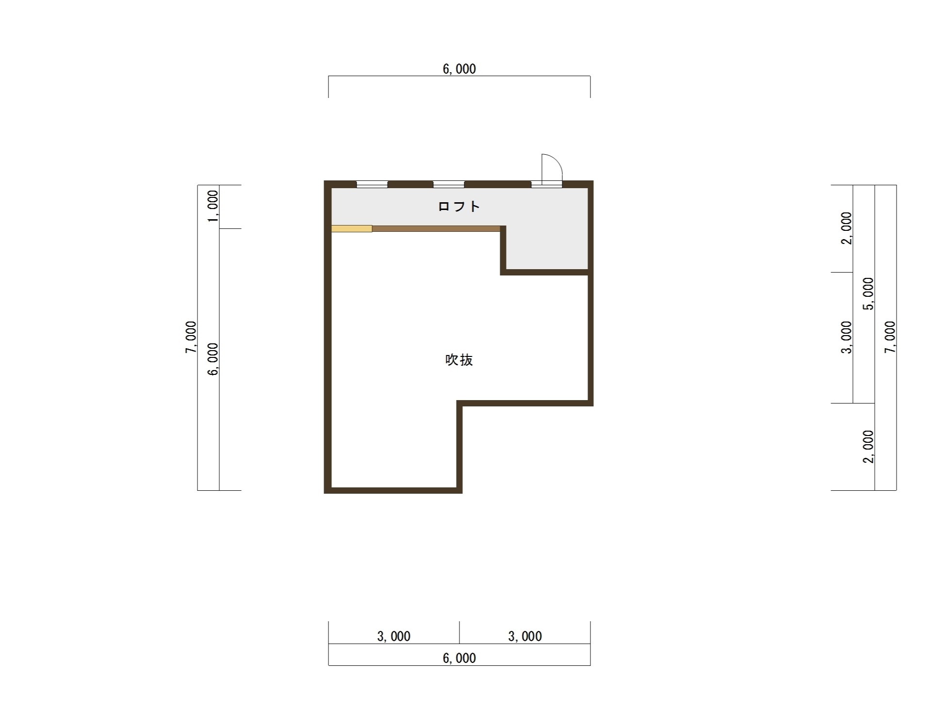
■ロフト
見どころポイント
最大の目玉は、1階と2階をゆるやかに繋ぐ「スキップフロア」。
リビングの一部を中2階にすることで、独立した書斎やキッズスペースとして使いつつ、家族との会話も楽しめます。

こんな方におすすめ!
・趣味の空間や「隠れ家」的な場所が欲しい
・開放感のある吹き抜けリビングに憧れる
2. 【益田・柳井展示場】家事と育児を両立する「子育てしやすい効率的な家」の家 ~回遊動線で家事時間を短縮~

(※益田・柳井は同一タイプのモデルハウスです)
間取り図
■1F
■2F
■ロフト
見どころポイント
家の中心にキッチンを配置し、ランドリーや2階へ最短距離で移動できる「家事ラク動線」が秀逸です。
2階にはライフステージに合わせて壁を作れる可変性のある洋室を完備しています。

こんな方におすすめ!
・共働きで、効率よく家事を済ませたい
・子供の成長に合わせて部屋の数を変えたい
3. 【浜田展示場】暮らしを整える「究極の収納・ただいま動線」の家 ~玄関から始まる、片付けの習慣化~

間取り図
■1F

■2F

■ロフト

見どころポイント
玄関から入ってすぐに荷物を置ける収納、そしてキッチンへ直行できる「お買い物動線」に注目。
L字型のLDKは、食事の準備と片付けをコンパクトにまとめ、家族が自然とリビングに集まる設計です。

こんな方におすすめ!
・いつもリビングをスッキリと保ちたい
・重い荷物を持ってキッチンまで移動するのが大変だと感じる
おわりに:間取り図では伝わらない「心地よさ」を会場で!
間取り図を見るだけでもワクワクしますが、天井の高さや窓から入る光、無垢材の質感などは、実際に現地でしか体感できません。
今回のコラムで「この間取り、好きかも!」と思った展示場へ、ぜひ足を運んでみてください。

